Gornja Pačetina
kurija Trnovec, XIII. st.
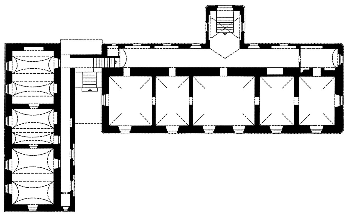
tlocrt kurije Trnovec, XIII. st.
Gornja Pačetina, naselje u sastavu grada Krapine, u dolini rijeke Krapinčice južno od upravnoga središta; 377 stanovnika. Zapadno od naselja nalazi se jednokatna kurija Hijacintovo iz XIX. st. Glavno pročelje raščlanjeno je sa sedam prozorskih osi, u središtu je altana kojoj su u XX. st. dograđeni stubište i terasa. Bila je u posjedu obitelji Keglević. U blizini se nalazi i kurija Trnovec, koja je postojala još u XVI. st., a današnji izgled dobila je u XVIII. st. Pripadala je obiteljima Keglević, Patačić, Rukavina i Igálffy. Izgrađena je na kosini: na ulaznoj strani je prizemna, a na drugoj ima jednokatnu visinu. Donja etaža, prostorije koje su građene češkim kapama, ima sporednu namjenu i služi kao spremište. Sobe na gornjem katu, među kojima se veličinom ističe središnja, nadsvođene su koritastim, a hodnik bačvastim svodom. Nekadašnje arkade ulaznoga pročelja naknadno su zazidane, opremljene prozorima te je dograđen današnji ulazni istak. Okomito uz kuriju, oko 1800. podignuta je pomoćna jednokatnica, prostorije koje su u obje etaže svođene češkim kapama, a trijem prvoga kata naknadno je zazidan. Kurija je sačuvala izvorni namještaj i ugođaj. God. 2013. na imanju obitelji Krog osnovana je farma pataka.
A. Kaniški